Van Nijenrodeweg 502 Amsterdam

Omschrijving

Een appartement van ca. 34 m2 op de 8e etage met prachtig weids uitzicht. Het appartement is zeer goed bereikbaar met ruime parkeergelegenheid en heeft veel voorzieningen in de buurt. Op steenworp afstand bevindt zich het winkelcentrum Groot Gelderlandplein met divers aanbod aan winkels, delicatessezaken en restaurants. Aangrenzend ligt het Gijsbrecht van Aemstelpark. Nabijgelegen is het Amsterdamse bos voor sport of recreatie alsmede rivier de Amstel met oer Hollands landschap. Het openbaar vervoer met de metro- en tramhalte op de Buitenveldertselaan is gelegen op 500m afstand, alsmede station Amsterdam Zuid in zakencentrum de Zuid-as op 5 minuten fietsen.

Het appartement bevindt zich in een professioneel onderhouden complex, waarbij de VvE Backershagen zich dagelijks inzet voor het onderhoud van het gebouw. In het complex is een lift aanwezig en bezit het gebouw individuele bergingen op de begane grond.

Indeling
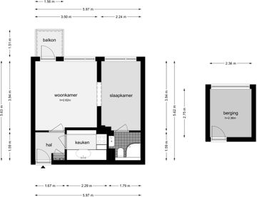
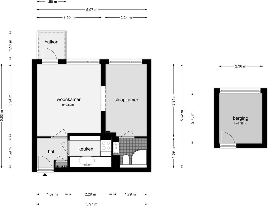
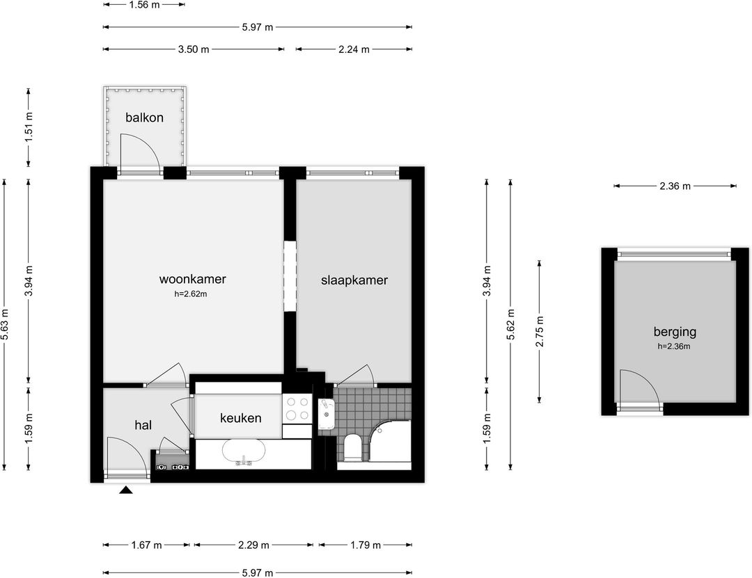
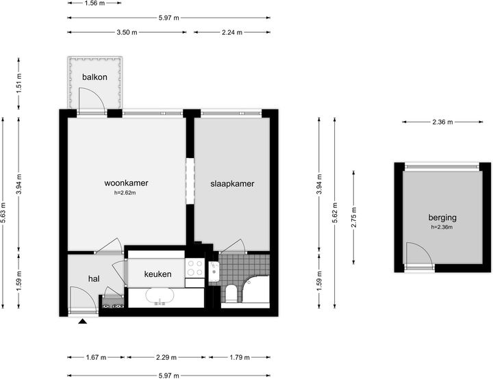
Begane grond: Entree met bellen tableau met videofoon, entreedeur toegang tot de bergingen, de lift en het trappenhuis.

8e Verdieping: Via het gedeelde portaal, komt u middels de voordeur in de woning met aan de rechterzijde de entree naar de keuken. In de keuken bevindt zich een gaskookplaat met afzuigkap, een koelkast en een spoelbak. De keuken bevat aan beide zijden veel opbergruimte en is er veel aanrechtblad aanwezig. Tevens een eerste aanleg voor een wasmachine.

Stap door de hal en kom binnen in de woonkamer waarbij het uitgestrekte uitzicht gelijk opvalt. De ramenpartij over de gehele breedte biedt rust en licht in de woonkamer met ruim vrij uitzicht. Middels de deur in de woonkamer betreedt u het balkon gelegen op het zuiden. De opbergkast tussen de woon- en slaapkamer zondert slaapkamer af. Vanuit de slaapkamer bevindt zich de nette badkamer met douche, toilet, opbergmeubel en wastafel.

Berging
Op de begane grond bevindt zich een eigen berging van ca. 6,5 m2 behorende bij het appartement.

Erfpacht
Gemeentelijk eigendom belast met voortdurende erfpacht (einddatum: 31-03-2038)
Jaarlijkse vaste canon bedraagt €46,73

Detailinformatie
• Bouwjaar 1965
• Bijzonder uitzicht
• Professioneel en actief VvE beheer
• De servicekosten € 110,65 per maand INCLUSIEF voorschot van €26,89 stookkosten
• Verwarming middels blokverwarming
• Heetwater middels eigen elektrische doorstroomboiler
• Oplevering in overleg. (Korte termijn)
• Parkeervergunning €50,91 per halfjaar
• Eigen berging ca. 6,5 m2 op de begane grond
• Ramen en deuren recent afgesteld (juni 2021)
• Meterkast recent aangepast voor droger en wasmachine (juli 2021)
• Wasmachine aansluiting recent gerealiseerd (augustus 2021)

Het appartement heeft een eigen website, hier vindt u alles nog eens fraai in beeld gebracht met onder andere de kadastrale kaart, lijst van roerende zaken, het meetcertificaat, full screen foto’s evenals informatie over de buurt, een ‘streetview’ en de zonne-grens!

De koopakte en leveringsakte zullen uitsluitend worden opgemaakt volgens het model van de Koninklijke Notariële Beroepenorganisatie en het ringmodel koopcontract Amsterdam, Amstelveen, Diemen, Badhoevedorp en Hoofddorp. Het notariskantoor van keuze dient te zijn gevestigd in één van de genoemde plaatsen.

Het verkochte is gemeten met gebruikmaking van de meetinstructie, welke is gebaseerd op de normen zoals vastgelegd in NEN 2580. De meetinstructie is bedoeld om een meer eenduidige manier van meten toe te passen voor het geven van een indicatie van de gebruiksoppervlakte. De meetinstructie sluit verschillen in meetuitkomsten niet volledig uit door bijvoorbeeld interpretatieverschillen, afrondingen en beperkingen bij het uitvoeren van een meting.
Het appartement is gemeten door een betrouwbaar professioneel bedrijf en koper vrijwaart verkoper evenals (de medewerkers van) Makelaarsgroep o.g. Commissaris voor eventuele afwijkingen in de opgegeven maten. Koper verklaart in de gelegenheid te zijn gesteld om het verkochte zelf te (laten) meten conform NEN 2580.

Lees de volledige omschrijving

Kenmerken

Algemeen

Aangeboden sinds
6+ maanden
Status
Verkocht
Aanvaarding
In overleg
Soort woonhuis
Appartement, portiekflat
Soort bouw
Bestaande bouw
Bouwjaar
1965
Ligging
Aan bosrand, aan park, in bosrijke omgeving, vrij uitzicht

Oppervlakten en inhoud

Wonen
34 m²
Gebouwgebonden Buitenruimte
3 m²
Externe bergruimte
7 m²
Inhoud
110 m³

Indeling

Aantal kamers
2 kamers (1 slaapkamer)
Aantal badkamers
1 badkamer
Badkamervoorzieningen
Douche, toilet, wastafel
Aantal woonlagen
1
Voorzieningen
Lift

Energie

Energielabel
D
Isolatie
Dubbel glas
Verwarming
Blokverwarming
Warm water
Doorstroomboiler, elektrische boiler eigendom

Kadastrale gegevens

Perceelnaam
Amsterdam AK 2809
Eigendomssituatie
Eigendom belast met erfpacht
Perceel
ASD30-AK-2809

Parkeergelegenheid

Soort parkeergelegenheid
Betaald parkeren, parkeervergunningen
Bekijk alle kenmerken

Overige media