Van Bossestraat 80 -hs Amsterdam

Omschrijving

*Wegens de overweldigende reacties plannen wij op dit moment geen nieuwe bezichtigingen meer in*

UNIEKE KANS! Zeer ruim en licht dubbel benedenhuis, met 3 slaapkamers, heerlijke tuin op het westen en volledig gerenoveerd in 2012. De woning is gelegen op eigen grond en bevindt zich in een rustige en kindvriendelijke straat in de populaire Staatsliedenbuurt, op loopafstand van het Westerpark, de Jordaan en speeltuin het Van Beuningenplein.

De indeling van deze schitterende woning is als volgt:

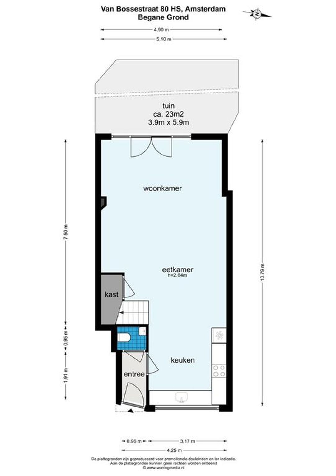
Entree, tochtportaal met separaat zwevend toilet met fontein en toegang tot zeer lichte living.
Uitgebouwde living met trapkast en L-vormige open keuken aan de voorzijde voorzien van diverse inbouwapparatuur. Vanuit de woonkamer heeft u middels openslaande deuren toegang tot de tuin op het westen met vrij uitzicht en heerlijke avondzon. Trap naar 1e verdieping, overloop, 2 slaapkamers achterzijde beide met toegang tot balkon op het westen. Separate ruimte voor de wasmachine en droger en ruime slaapkamer voorzijde. Luxe en moderne badkamer voorzien van ligbad met handdouche, inloop douche, toilet, wastafel en handdoekradiator.

Het huis ligt in de populaire Staatsliedenbuurt. De locatie is perfect. Rustig en toch vlakbij de gezellige Jordaan, het Westerpark en het Haarlemmerplein. Op een steenworp afstand bevindt zich een zeer breed aanbod van diverse gezellige cafés, restaurants en culturele hotspots. Op loopafstand vind je de Foodhallen, diverse scholen en alle winkels voor je dagelijkse boodschappen. Het gebied rondom de huidige Foodhallen wordt geheel herontwikkeld. Zie voor meer informatie de website van de Gemeente Amsterdam.

Er zijn diverse openbaar vervoer verbindingen op loopafstand (tram- en bus) en u bent met de auto binnen vijf minuten op de ring A-10 en diverse uitvalswegen.

Bijzonderheden appartement:

– Bouwjaar 1924;
– Woonoppervlakte appartement 90m²;
– In 2020 zijn de muren op de begane grond en de badkamer opnieuw geschilderd en zijn de vloer en interne trap opgeknapt;
– Voorzien van dubbelglas;
– Voorzien van inbouwspots, fraaie vensterbanken, houten vloer en luxe binnendeuren van 2.30 meter hoog;
– Moderne keuken voorzien van 6 pits gasfornuis met oven (M-system), afzuigkap, spoelbak, koelkast, vriezer, combi oven en vaatwasser;
– Badkamer voorzien van ligbad met handdouche, inloop douche, toilet, wastafel en handdoekradiator;
– CV ketel handig weggewerkt in kast op het balkon (Intergas 2011, eigendom);
– Servicekosten € 150,= per maand;
– Voor de deur geldt betaald parkeren, bewoners middels vergunning;
– Oplevering in overleg.

Deze woning heeft een eigen website! Hier vindt u alles nog eens fraai in beeld gebracht met onder andere de kadastrale kaart, lijst van roerende zaken, het meetcertificaat, full screen foto’s evenals informatie over de buurt, een ‘streetview’ en de zonne-grens! Download de brochure en klik op de link om naar de website te gaan!

De koopakte en leveringsakte zullen uitsluitend worden opgemaakt volgens het model van de Koninklijke Notariële Beroepenorganisatie en het ringmodel koopcontract Amsterdam, Amstelveen, Diemen, Badhoevedorp en Hoofddorp.
Het notariskantoor van keuze dient te zijn gevestigd in één van de genoemde plaatsen.

Het verkochte is gemeten met gebruikmaking van de meetinstructie, welke is gebaseerd op de normen zoals vastgelegd in NEN 2580. De meetinstructie is bedoeld om een meer eenduidige manier van meten toe te passen voor het geven van een indicatie van de gebruiksoppervlakte. De meetinstructie sluit verschillen in meetuitkomsten niet volledig uit door bijvoorbeeld interpretatieverschillen, afrondingen en beperkingen bij het uitvoeren van een meting.

De woning is gemeten door een betrouwbaar professioneel bedrijf en koper vrijwaart verkoper evenals (de medewerkers van) Makelaarsgroep o.g. Commissaris voor eventuele afwijkingen in de opgegeven maten. Koper verklaart in de gelegenheid te zijn gesteld om het verkochte zelf te (laten) meten conform NEN 2580.

——————————————————————————————————————-

*Due to the overwhelming response, we are not planning any new viewings at this moment*

UNIQUE OPPORTUNITY! Very spacious and light double ground floor house, with 3 bedrooms, lovely garden on the west and completely renovated in 2012. The house is located on own ground and is located in a quiet and child-friendly street in the popular Staatsliedenbuurt, within walking distance of the Westerpark, the Jordaan and the playground Van Beuningenplein.

The layout of this beautiful home is as follows:

Entrance, portal with separate toilet with washbasin and access to very bright living room.
Extended living room with stair cupboard and L-shaped open kitchen at the front with various built-in appliances. From the living room you have access to the west-facing garden through French doors, with free view and lovely evening sun. Stairs to 1st floor, 2 bedrooms at the rear, both with access to the balcony on the west. Separate closet for the washing machine and dryer and spacious bedroom at the front. Luxurious and modern bathroom with bath with hand shower, walk-in shower, toilet, sink and towel radiator.

The house is located in the popular Staatsliedenbuurt. The location is perfect. Quiet and yet close to the pleasant Jordaan, Westerpark and Haarlemmerplein. In A few minutes walk there is a very wide range of various cozy cafes, restaurants and cultural hotspots. Within walking distance you will find the Foodhallen, various schools and all shops for your daily groceries. The area around the current Foodhallen will be completely redeveloped. For more information, see the website of the Municipality of Amsterdam.

There are various public transport connections within walking distance (tram and bus) and you are within five minutes by car on the ring A-10 and various roads.

Details apartment:

– Built in 1924;
– Living area apartment 90m²;
– In 2020 the walls on the ground floor and the bathroom have been repainted and the floor and internal staircase have been refurbished;
– Equipped with double glazing;
– Equipped with recessed spotlights, beautiful window sills, wooden floor and luxurious interior doors of 2.30 meters high;
– Modern kitchen with 6 burner gas stove with oven (M-system), extractor hood, sink, fridge, freezer, combination oven and dishwasher;
– Bathroom with bath with hand shower, walk-in shower, toilet, sink and towel radiator;
– Central heating conveniently hidden in the cupboard on the balcony (Intergas 2011, own property);
– Service costs € 150 per month;
– Paid parking applies in front of the door, residents by means of a permit;
– Delivery in consultation.

This house has its own website! Here you will find everything beautifully mapped out including the cadastral map, list of movable property, the measurement certificate, full screen photos as well as information about the neighborhood, a ‘street view’ and the solar boundary! Download the brochure and click on the link to go to the website!

The deed of purchase and deed of delivery will be drawn up exclusively according to the model of the Royal Notarial Association and the ring model purchase contract Amsterdam, Amstelveen, Diemen, Badhoevedorp and Hoofddorp.
The notary’s office of choice must be located in one of the places mentioned.

The goods sold are measured using the measuring instruction, which is based on the standards as laid down in NEN 2580. The measuring instruction is intended to apply a more unambiguous way of measuring to give an indication of the usable area. The measurement instruction does not completely rule out differences in measurement results due to, for example, interpretation differences, rounding off and limitations when performing a measurement.

The property has been measured by a reliable professional company and the buyer indemnifies the seller as well as (the employees of) Makelaarsgroep o.g. The buyer declares that he has been given the opportunity to measure the sold item (or have it measured) in accordance with NEN 2580.

Lees de volledige omschrijving

Kenmerken

Algemeen

Aangeboden sinds
6+ maanden
Status
Verkocht
Aanvaarding
In overleg
Soort woonhuis
Appartement, dubbel benedenhuis
Soort bouw
Bestaande bouw
Bouwjaar
1924
Ligging
Aan rustige weg, in centrum, in woonwijk

Oppervlakten en inhoud

Wonen
90 m²
Gebouwgebonden Buitenruimte
5 m²
Inhoud
316 m³

Indeling

Aantal kamers
4 kamers (3 slaapkamers)
Aantal badkamers
1 badkamer
Badkamervoorzieningen
Inloopdouche, ligbad, toilet, wastafel
Aantal woonlagen
2

Energie

Isolatie
Dubbel glas
Warm water
Cv ketel

Kadastrale gegevens

Perceelnaam
Amsterdam Y 4712
Eigendomssituatie
Volle eigendom
Perceel
ASD21-Y-4712

Buitenruimte

Tuin
Achtertuin
Achtertuin
23 m²
Ligging tuin
West

Parkeergelegenheid

Soort parkeergelegenheid
Betaald parkeren, parkeervergunningen
Bekijk alle kenmerken

Overige media