Straat van Makassar 71 Amstelveen

Omschrijving

In een rustige en groene wijk ligt deze verbouwde én uitgebouwde eengezinswoning in één van de mooiste en rustigste locaties van Amstelveen Noord. Aan de voorzijde zicht op een groen plantsoen en de achtertuin op het westen. Op slechts 800 meter van Buitenveldert en nog geen 10 minuten van de Amsterdamse Zuid-As. Kortom: een unieke locatie!

De indeling van deze ruime woning is verrassend te noemen:

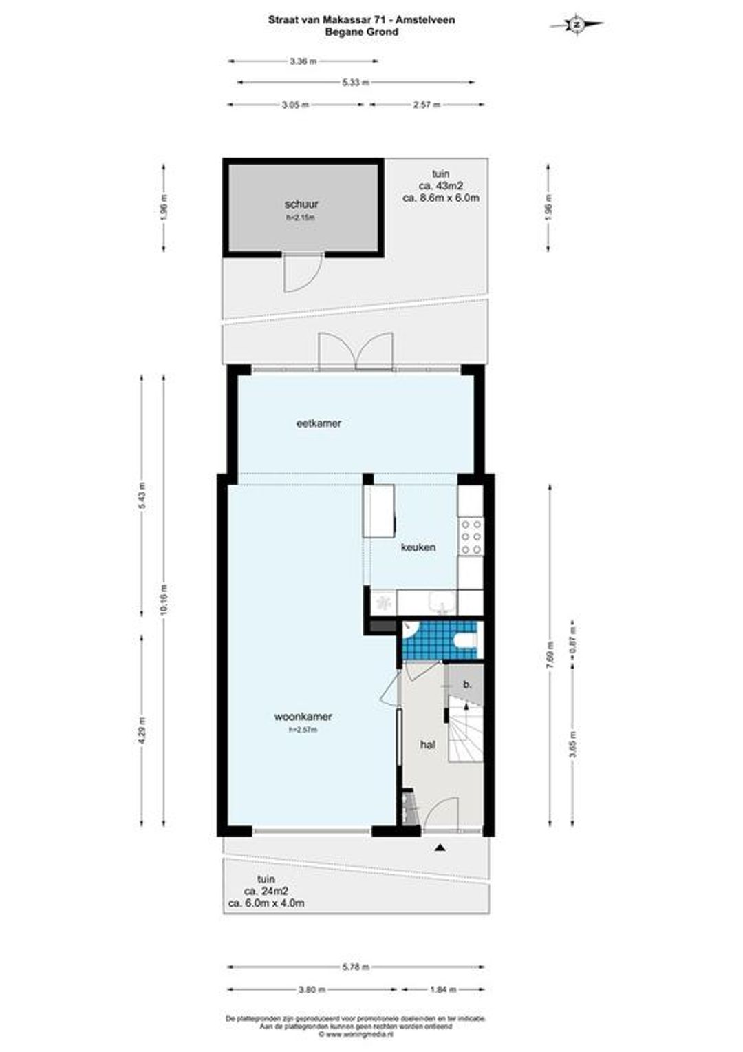
Entree: lichte ruime hal, uitgebreide meterkast, toilet met fontein en toegang naar de woonkamer. De woonkamer
is aan de achterzijde over de gehele breedte uitgebouwd met open keuken met inbouwapparatuur, eetgedeelte en een werk-/studiehoek. Openslaande deuren geven toegang tot de tuin.
Via de trap komt u op de overloop van de eerste verdieping: hier bevinden zich twee slaapkamers, een moderne zeer ruime badkamer met ligbad, inloopdouche, dubbele wastafel in meubel, handdoekradiator en een 2e toilet. Voorts bevindt zich hier een separate was-/strijkruimte Trap naar de 2e verdieping: overloop met dakraam, bergruimte, toegang naar de werkkamer en de ruime hoofdslaapkamer. Zowel aan de voor- als achterzijde een dakkapel waardoor het mogelijk is hier twee separate slaapkamers van te maken. Lichte zonnige tuin op het westen met een fietsoverkapping, berging en achterom

Natuur- en recreatiegebied Amstelland, met prachtige fiets en wandelpaden door riet- en weiland en langs de Amstel. In een paar minuten lopen bent u in de natuur en de rust van de Middelpolder, die uiteindelijk uitmondt in de rivier de Amstel. Vanuit de tuin kunt u de grutto’s en ganzen horen en zien overvliegen. Dit alles op steenworp afstand van Amsterdam. Ook op loopafstand zijn scholen en het overdekte winkelcentrum ‘Het Kostverlorenhof’ enerzijds en ‘Bankrashof’ anderzijds, alwaar een keur aan winkels te vinden is waaronder een Albert Heijn en Dirk van den Broek, en ook verschillende speciaalzaken en plezierige restaurants. Het Groot Gelderlandplein en het Stadshart met Cultureel Centrum Amstelveen, alsmede de uitvalsweg A9 met verbinding naar de A10 (de ring rondom Amsterdam) en de Schiphollijn zijn op zeer korte afstand bereikbaar. Parkeren is in dit deel van Amstelveen vrij en zonder vergunning. De woning ligt binnen loopafstand van het openbaar vervoer met de vernieuwde halte Onderuit en de nieuwe ondergrondse halte Zonnestein voor de tram 5 en metro 25. het tegenovergelegen grasveld met zijn vele groen is in de rustige straat een ware uitkomst voor spelende kinderen.

Bijzonderheden:

– Bouwjaar 1967;
– Woonoppervlakte 129m²;
– In 2015/2016 is de aanbouw geplaatst, de dakkapel achterzijde en de nieuwe keuken en badkamer gerealiseerd;
– Moderne keuken met inbouwapparatuur: breed fornuis, 2 ovens (incl. 1 Siemens combimagnetron/stoomoven) RVS afzuigkap, Miele vaatwasser (2019) en Siemens Koelkast (2015);
– Door het hele huis slimme thermostaat Honeywell Ecohome met temperatuurregeling in iedere ruimte (kunnen in overleg achterblijven);
– Elektrisch bedienbaar zonnescherm op de begane grond, 2 elektrische screens 2e verdieping achterzijde (2015)
– Nefit Proline NxT HR ketel (eigendom 2015);
– Uitgebreide groepenkast;
– Oplevering in overleg.

Deze woning heeft een eigen website! Hier vindt u alles nog eens fraai in beeld gebracht met onder andere de kadastrale kaart, lijst van roerende zaken, het meetcertificaat, full screen foto’s evenals informatie over de buurt, een ‘streetview’ en de zonne-grens!

De koopakte en leveringsakte zullen uitsluitend worden opgemaakt volgens het model van de Koninklijke Notariële Beroepsorganisatie en het ringmodel koopcontract Amsterdam, Amstelveen, Diemen, Badhoevedorp en Hoofddorp. Het notariskantoor van keuze dient te zijn gevestigd in één van de genoemde plaatsen. Het verkochte is gemeten met gebruikmaking van de meetinstructie, welke is gebaseerd op de normen zoals vastgelegd in NEN 2580.

De meetinstructie is bedoeld om een meer eenduidige manier van meten toe te passen voor het geven van een indicatie van de gebruiksoppervlakte. De meetinstructie sluit verschillen in meetuitkomsten niet volledig uit door bijvoorbeeld interpretatieverschillen, afrondingen en beperkingen bij het uitvoeren van een meting. De woning is gemeten door een betrouwbaar professioneel bedrijf en koper vrijwaart verkoper evenals (de medewerkers van) Makelaarsgroep o.g. Commissaris voor eventuele afwijkingen in de opgegeven maten. Koper verklaart in de gelegenheid te zijn gesteld om het verkochte zelf te (laten) meten conform NEN 2580.

Lees de volledige omschrijving

Kenmerken

Algemeen

Aangeboden sinds
6+ maanden
Status
Verkocht
Aanvaarding
In overleg
Soort woonhuis
Eengezinswoning, tussenwoning
Soort bouw
Bestaande bouw
Bouwjaar
1967
Soort dak
Pannen
Ligging
In woonwijk, open ligging

Oppervlakten en inhoud

Wonen
129 m²
Externe bergruimte
7 m²
Perceel
141 m²
Inhoud
433 m³

Indeling

Aantal kamers
5 kamers (4 slaapkamers)
Aantal badkamers
1 badkamer
Badkamervoorzieningen
Dubbele wastafel, inloopdouche, ligbad, toilet, wastafelmeubel
Aantal woonlagen
3

Energie

Energielabel
C
Isolatie
Volledig geisoleerd
Warm water
Cv ketel

Kadastrale gegevens

Perceelnaam
Amstelveen I 4502
Oppervlakte
141 m²
Eigendomssituatie
Volle eigendom
Perceel
ASV00-I-4502

Buitenruimte

Tuin
Achtertuin, voortuin
Achtertuin
46 m²
Ligging tuin
Zuidwest bereikbaar via achterom

Parkeergelegenheid

Soort parkeergelegenheid
Openbaar parkeren
Bekijk alle kenmerken

Overige media