Ouderkerkerlaan 12 Amstelveen

Omschrijving

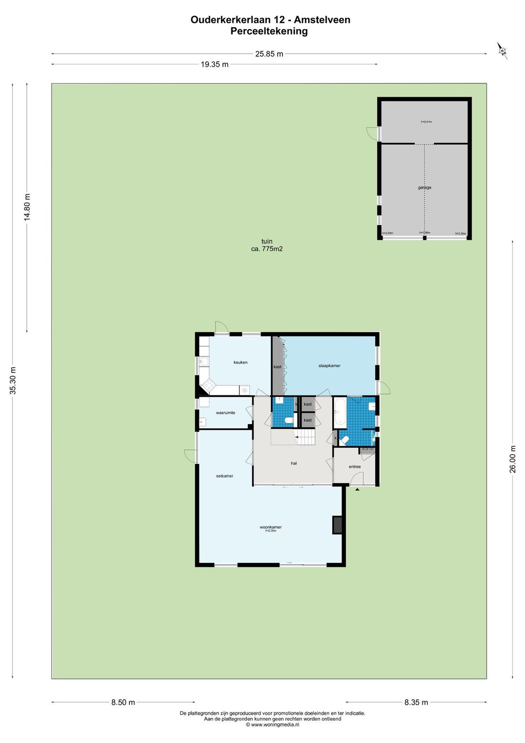
Vrijstaande villa op één van de meest geliefde locaties van Amstelveen gelegen in het centrum nabij het Stadshart en Oude Dorp met aansluitend het Amsterdamse Bos. Aan de voorzijde vrij uitzicht op het sierwater, aan de achterzijde een parkachtige omgeving eveneens aan water. Aan beide zijden van het huis mogelijkheid tot het parkeren op eigen terrein. De brede eigen oprit aan de zijkant geeft toegang tot de achterin gelegen dubbele vrijstaande garage met veel extra bergruimte. Mogelijkheid van parkeren voor meerdere auto’s op eigen terrein.

De indeling van de woning is als volgt:

Entree aan de voorzijde met garderobe en meterkast, ruime speelse hal met toegang tot de vertrekken op de begane grond: de heerlijke ruime L-vormige woonkamer met openhaard partij aan de voorzijde, de woonkeuken aan de achterzijde met deur naar de prachtige brede tuin, bijkeuken met aansluiting voor de wasmachine en droger, ruim toilet met fontein en bergruimte. Voorts toegang naar de slaapkamer op de begane grond met aansluitend de badkamer welke is voorzien van een wastafelmeubel, douche, toilet, ligbad en een design handdoekradiator. Extra kasten in de hal. Middels de open trap komt u op de overloop met veel bergruimte. Slaapkamer aan de voorzijde met bergruimte aan weerszijden van de kamer en een tweede slaapkamer over de gehele breedte van het huis aan de achterzijde. Hierboven kan eventueel nog een kamer worden gecreëerd. De vloer van het plafond is daarop al berekend. Beide slaapkamers zijn groot genoeg om hier 2 extra kamers te creëren. Voorts een moderne nieuwe 2e badkamer met een ligbad, dubbele wastafel in meubel en een inloopdouche en 2e toilet. Dubbele garage met extra bergruimte en dubbele vliering.

Het uitzicht aan voorzijde is fenomenaal op het sierwater van de lommerrijke Bovenkerkerkade. Rondom het huis ligt een fraai aangelegde tuin met verschillende terrassen, waardoor u de hele dag van de zon kunt genieten.

De buurt is zeer gewild in Amstelveen door zijn karakteristieke bouw en vele groenvoorzieningen.
Het pittoreske oude dorp met zijn verscheidenheid aan mooie restaurants, bars, musea en kleine boutiques is nog geen 5 minuten lopen. Het fraaie Broersepark evenals het unieke gebied rond de Amstelveense Poel en het Amsterdamse Bos ligt tevens op een steenworp afstand. Het bos heeft een groot scala aan recreatieve mogelijkheden, joggen, fietsen, wandelen, kanovaren, tennis, hockeyen en cricket behoren allemaal tot de mogelijkheden.

Op loop-/fietsafstand liggen de lokale winkels en de Albert Heijn aan de Amsterdamseweg en het mondaine Stadshart in het centrum.

De nabijgelegen snelwegen A9 en A10 (ring Amsterdam) zorgen voor een goede bereikbaarheid per auto. Bij het Stadshart ligt tevens het busstation van Amstelveen, vanwaar busverbindingen in noordelijke richting (Amsterdam) en zuidelijke richting van Amstelveen/Schiphol/Aalsmeer/Uithoorn en omgeving gaan. Voorts ligt het centrum van Amsterdam op fietsafstand. Er is een ruime keuze aan lagere- en middelbare scholen in de nabijheid alsmede diverse internationale scholen en een zeer ruim aanbod van sportfaciliteiten voor jong en oud. Kortom: alle gemakken om het woonplezier optimaal te maken!

Bijzonderheden woning:

– Bouwjaar 1974;
– Buitenzijde geschilderd in 2015;
– Woonkamer voorzien van fraaie open haard en
– Meerdere raampartijen in de woonkamer, recent vernieuwde kozijnen, aan de voorzijde;
– Keuken voorzien van diverse inbouwapparatuur: elektrische kookplaat, oven, RVS afzuigschouw, vaatwasser, koelkast met 3-lade vriezer, combi stoomoven;
– Zeer ruime tuin met veel privacy, dubbele stenen garage met elektra en buitenkraan;
– Volledig voorzien van dubbel glas;
– De garage is voorzien van twee elektrisch bedienbare deuren;
– Verwarming en warmwater middels Nefit 9000i HRC35/CW6 ketel, bouwjaar 2018;
– In de straat alsmede in de gehele wijk geldt vrij parkeren.

Deze woning heeft een eigen website! Hier vindt u alles nog eens fraai in beeld gebracht met onder andere de kadastrale kaart, lijst van roerende zaken, het meetcertificaat, full screen foto’s evenals informatie over de buurt, een ‘streetview’ en de zonne-grens! Download de brochure en klik op de link om naar de website te gaan!

De koopakte en leveringsakte zullen uitsluitend worden opgemaakt volgens het model van de Koninklijke Notariële Beroepenorganisatie en het ringmodel koopcontract Amsterdam, Amstelveen, Diemen, Badhoevedorp en Hoofddorp.
Het notariskantoor van keuze dient te zijn gevestigd in één van de genoemde plaatsen.

Het verkochte is gemeten met gebruikmaking van de meetinstructie, welke is gebaseerd op de normen zoals vastgelegd in NEN 2580. De meetinstructie is bedoeld om een meer eenduidige manier van meten toe te passen voor het geven van een indicatie van de gebruiksoppervlakte. De meetinstructie sluit verschillen in meetuitkomsten niet volledig uit door bijvoorbeeld interpretatieverschillen, afrondingen en beperkingen bij het uitvoeren van een meting.
De woning is gemeten door een betrouwbaar professioneel bedrijf en koper vrijwaart verkoper evenals (de medewerkers van) Makelaarsgroep o.g. Commissaris voor eventuele afwijkingen in de opgegeven maten. Koper verklaart in de gelegenheid te zijn gesteld om het verkochte zelf te (laten) meten conform NEN 2580.

Lees de volledige omschrijving

Kenmerken

Algemeen

Aangeboden sinds
6+ maanden
Status
Verkocht
Aanvaarding
In overleg
Soort woonhuis
Villa, vrijstaande woning
Soort bouw
Bestaande bouw
Bouwjaar
1974
Soort dak
Pannen
Ligging
Aan rustige weg, aan water, beschutte ligging, landelijk gelegen, vrij uitzicht

Oppervlakten en inhoud

Wonen
231 m²
Externe bergruimte
41 m²
Perceel
954 m²
Inhoud
870 m³

Indeling

Aantal kamers
4 kamers (3 slaapkamers)
Aantal badkamers
2 badkamers
Badkamervoorzieningen
Douche, dubbele wastafel, ligbad, toilet, vloerverwarming, wastafelmeubel
Aantal woonlagen
2

Energie

Energielabel
C
Isolatie
Dubbel glas
Warm water
Cv ketel

Kadastrale gegevens

Perceelnaam
Amstelveen H 2126
Oppervlakte
954 m²
Eigendomssituatie
Volle eigendom
Perceel
ASV00-H-2126

Buitenruimte

Tuin
Tuin rondom

Garage

Capaciteit
2 auto's
Voorzieningen
Elektra, elektrische deur, vliering, water

Parkeergelegenheid

Soort parkeergelegenheid
Op eigen terrein, openbaar parkeren
Bekijk alle kenmerken

Overige media