Leeuwendalersweg 618 Amsterdam

Omschrijving

Gelegen op zeer centrale locatie bieden wij een prachtig totaal GERENOVEERD 4-kamer appartement aan van circa 92m² met EIGEN PARKEERPLAATS in de ondergelegen parkeergarage en energielabel A+! Het lichte appartement is gelegen op de 2e verdieping van een goed onderhouden complex uit 2007. Het appartement is gelegen in een rustige straat aan de rand van de populaire wijk: Bos en Lommer op 2 minuten van de Ring A10. Dit betekent een ideale combinatie van heerlijk rustig wonen met een zeer goede bereikbaarheid ten op zichtte van het stadcentrum! **English text below**

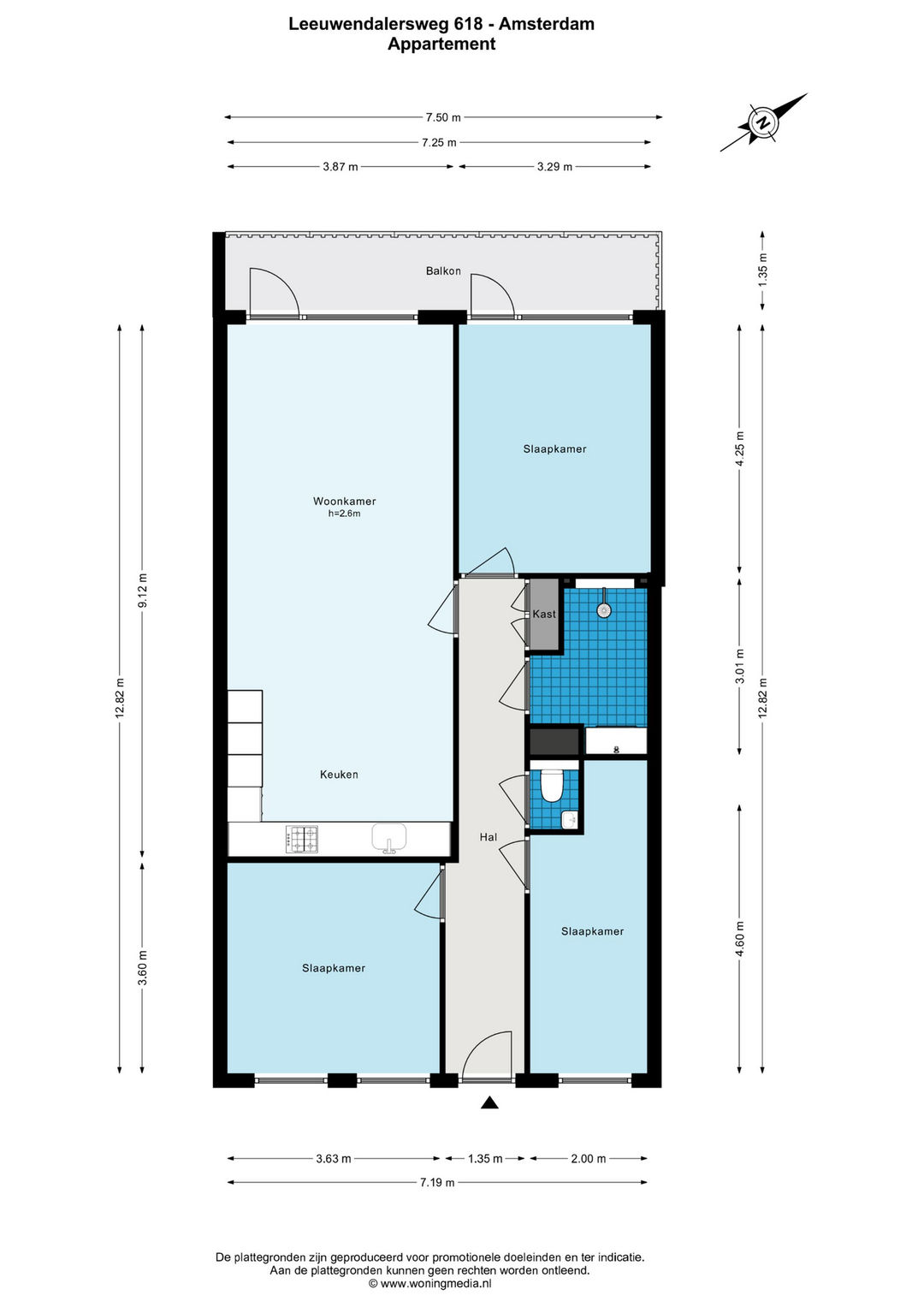
De indeling van het appartement:
Middels de nette afgesloten gezamenlijke entree op de begane grond komt u met lift en/of trappenhuis op de tweede verdieping.

2e verdieping:
Brede entree/hal v.v. meterkast en videofoon-installatie en royaal toilet en een fontein. Een lichte en ruime woonkamer aan de achterzijde van het appartement met de moderne luxe open keuken welke is voorzien van diverse inbouw apparatuur, o.a. inductie kookplaat, oven, vaatwasser, ruime koelkast, 7 vrieslades en aansluiting voor een was-droogcombinatie. Het balkon bereikt u middels de woonkamer en biedt genoeg ruimte voor een gezellig zitje en vrij uitzicht. Het betreft een woning breed balkon en is gesitueerd op het westen, hier heeft u vanaf de middag tot laat in de avond de zon. Het appartement beschikt in totaal over 3 slaapkamers, waarvan 2 aan de voorzijde zijn gesitueerd. De hoofdslaapkamer bevindt zich aan de voorzijde en heeft eveneens toegang tot het balkon. De royale luxe badkamer beschikt over een zeer ruime inloopdouche, wastafelmeubel met wandkast en design radiator.

Privé parkeerplaats in de afgesloten parkeergarage. Tevens is hier een gedeelde fietsenberging aanwezig.

Omgeving:
Het appartement is gelegen in de Kolenkitbuurt. Het ligt gunstig ten opzichte van het centrum (15 minuten fietsen) en dicht bij winkels (Bos en Lommerweg en Jan Evertsenstraat) en stadsparken (Erasmuspark, Gerbrandypark en het Rembrandtpark). Het appartementencomplex ligt naast de Erasmusgracht, waar u uw bootje kunt aanleggen en binnen enkele vaarminuten op de grachtengordel bent of de Sloterplas. Op loopafstand bevinden zich gezellige cafés en restaurants. Voor kinderen zijn er diverse speeltuinen en parken in de nabije omgeving. Er is veel keus in basisscholen en kinderopvang in Bos en Lommer.

Het appartementencomplex ligt zeer gunstig ten opzichte van Schiphol, uitvalsweg A10, treinstation Sloterdijk en de verbindingen met openbaar vervoer zijn uitstekend. Daarnaast is er voldoende parkeergelegenheid bij het appartementencomplex.

Bijzonderheden appartement:
– Bouwjaar 2007;
– Volledig gerenoveerd in 2020;
– Woonoppervlakte appartement 92 m² (NEN-2580);
– Ruim zonnig balkon op het westen;
– Eigen parkeerplaats in ondergelegen parkeergarage
– Moderne ruime keuken;
– Luxe ruim opgezette badkamer;
– Verwarming en warm water middels Aquaheat stations (2020);
– VvE wordt professioneel beheert en bestaat uit 262 appartementsrechten;
– Gelegen op erfpachtgrond, voortdurende erfpacht, canon is afgekocht tot 15 december 2055. Aanvraag is recent gedaan tot eeuwigdurende afkoop;
– Servicekosten VvE € 168,41 per maand;
– Voor de deur geldt betaald parkeren;
– Oplevering in overleg.

De koopakte en leveringsakte zullen uitsluitend worden opgemaakt volgens het model van de Koninklijke Notariële Beroepenorganisatie en het ringmodel koopcontract Amsterdam, Amstelveen, Diemen, Badhoevedorp en Hoofddorp.
Het notariskantoor van keuze dient te zijn gevestigd in één van de genoemde plaatsen.

DISCLAIMER
Deze informatie is door ons met de nodige zorgvuldigheid samengesteld. Onzerzijds wordt echter geen enkele aansprakelijkheid aanvaard voor enige onvolledigheid, onjuistheid of anderszins, dan wel de gevolgen daarvan. Alle opgegeven maten en oppervlakten zijn indicatief. Koper heeft zijn eigen onderzoekplicht naar alle zaken die voor hem of haar van belang zijn. Met betrekking tot deze woning is de makelaar adviseur van verkoper. Wij adviseren u een deskundige (NVM-)makelaar in te schakelen die u begeleidt bij het aankoopproces. Indien u specifieke wensen heeft omtrent de woning, adviseren wij u deze tijdig kenbaar te maken aan uw aankopend makelaar en hiernaar zelfstandig onderzoek te (laten) doen. Indien u geen deskundige vertegenwoordiger inschakelt, acht u zich volgens de wet deskundige genoeg om alle zaken die van belang zijn te kunnen overzien. Van toepassing zijn de MVA voorwaarden.

NENCLAUSULE
De gebruiksoppervlakte is berekend conform de branche vastgestelde NEN 2580- norm. De oppervlakte kan derhalve afwijken van vergelijkbare panden en/of oude referenties. Dit heeft vooral te maken met deze (nieuwe) rekenmethode. Koper verklaart voldoende te zijn geïnformeerd over de hiervoor bedoelde normering. Verkoper en diens makelaar doen hun uiterste best de juiste oppervlakte en inhoud te berekenen aan de hand van eigen metingen en dit zoveel mogelijk te ondersteunen door het plaatsen van plattegronden met maatvoering. Mocht de maatvoering onverhoopt niet (volledig) overeenkomstig de normering zijn vastgesteld, wordt dit door koper aanvaard. Koper is voldoende in de gelegenheid gesteld de maatvoering zelf te (laten) controleren. Verschillen in de opgegeven maat en grootte geven geen der partijen enig recht, zo ook niet op aanpassing van de koopsom. Verkoper en diens makelaar aanvaarden geen enkele aansprakelijkheid in deze.

**English text**

Located at a very central location we offer a beautiful totally renovated 4-room apartment of approximately 92m² with private a parking space in the underground parking garage and energy label A+! The bright apartment is located on the 2nd floor of a well maintained complex built in 2007. The apartment is situated in a quiet street on the edge of the popular neighborhood: Bos en Lommer at 2 minutes from the A10 ring road. This means an ideal combination of lovely quiet living with very good accessibility to the city center!

The layout of the apartment:
Through the neat closed joint entrance on the first floor you will reach the second floor by elevator and/or staircase.

2nd floor:
Wide entrance / hall with meter cupboard and videophone system and generous toilet and washbasin. A bright and spacious living room at the rear of the apartment with modern luxurious open kitchen which is equipped with various appliances, including induction hob, oven, dishwasher, large refrigerator, 7 freezer drawers and connection for a washer-dryer combination. The balcony is accessible from the living room and offers enough space for a cozy sitting area and unobstructed views. It is a wide balcony and is located on the west, here you have from noon until late in the evening the sun. The apartment has a total of 3 bedrooms, 2 of which are located at the front. The master bedroom is located at the front and also has access to the balcony. The spacious luxurious bathroom has a very large walk-in shower, washbasin cabinet with wall cabinet and design radiator.

Private parking in the closed parking garage. There is also a shared bicycle storage here.

Surroundings:
The apartment is located in the Kolenkitbuurt. It is conveniently located to the city center (15 minutes by bike) and close to stores (Bos en Lommerweg and Jan Evertsenstraat) and city parks (Erasmuspark, Gerbrandypark and Rembrandtpark). The apartment complex is located next to the Erasmusgracht, where you can dock your boat and be on the canals or the Sloterplas within minutes. Within walking distance are cozy cafes and restaurants. For children there are several playgrounds and parks in the vicinity. There is plenty of choice in elementary school and child care in Bos en Lommer.

The apartment complex is very conveniently located to Schiphol Airport, exit A10, Sloterdijk train station and public transport connections are excellent. In addition, there is ample parking at the apartment complex.

Details apartment:
– Built in 2007;
– Completely renovated in 2020;
– Living area apartment 92 m² (NEN-2580);
– Spacious sunny balcony facing west;
– Private parking in underground parking garage
– Modern spacious kitchen;
– Luxury spacious bathroom;
– Heating and hot water through Aquaheat stations (2020);
– VvE is professionally managed and consists of 262 apartment rights;
– Located on leasehold land, leasehold, canon is bought off until December 15, 2055. Application has recently been made for perpetual redemption;
– Service charges VvE € 168.41 per month;
– In front of the door is paid parking;
– Delivery in consultation.

The deed of sale and deed of delivery shall be drawn up exclusively according to the model of the Royal Notarial Profession and the ring model of the Amsterdam, Amstelveen, Diemen, Badhoevedorp and Hoofddorp purchase contract. The notary office of choice must be located in one of the aforementioned places.

DISCLAIMER
This information was composed by us with due care. However, we can accept no liability whatsoever for any inaccuracies, incomplete information or otherwise, nor for any loss or inconvenience that this may cause. All specified sizes and dimensions are indicative. Purchaser has his/her own obligation to investigate all matters which are important to him or her. Pertaining to this house, the broker-consultant is of the vendor. We advise you to make use of an expert (NVM) broker to guide you for the purchase process. If you have specific wishes regarding the house, then we recommend you to communicate these in a timely manner to your purchasing broker and to do an independent examination of these things. If you do not make use of an expert representative, then the law considers you enough of an expert to be able to have a good grasp of all matters which are of importance. The MVA conditions apply.

NEN CLAUSE
The usable surface area is calculated in accordance with the NEN 2580 standard determined by the industry. The surface area may therefore deviate from similar buildings and/or old references. This is mainly due to this (new) calculation method. The purchaser states to be sufficiently informed about the aforementioned standard. The vendor and the broker of the vendor do their very best to calculate the correct surface area and content on the basis of own measurements and to support this as much as possible by posting maps with dimensions. However, if the dimensions happen not to have been (completely) determined in accordance with the standard, then this is accepted by the purchaser. The purchaser has been sufficiently given the opportunity to check the dimensions. Differences in the indicated measurement and size do not provide any right to the parties, also do not the adjust the purchase price. The vendor and the broker of the vendor do not accept any liability in this matter.

Lees de volledige omschrijving

Kenmerken

Algemeen

Aangeboden sinds
6+ maanden
Status
Verkocht
Aanvaarding
In overleg
Soort woonhuis
Appartement, galerijflat
Soort bouw
Bestaande bouw
Ligging
Aan rustige weg, in woonwijk

Oppervlakten en inhoud

Wonen
92 m²
Gebouwgebonden Buitenruimte
10 m²
Inhoud
290 m³

Indeling

Aantal kamers
4 kamers (3 slaapkamers)
Aantal woonlagen
1
Voorzieningen
Mechanische ventilatie, tv kabel

Energie

Energielabel
A+
Isolatie
Volledig geisoleerd
Verwarming
Stadsverwarming
Warm water
Centrale voorziening

Kadastrale gegevens

Perceelnaam
Sloten D 9251A
Eigendomssituatie
Eigendom belast met erfpacht
Perceelnaam
Sloten D 9251-
Eigendomssituatie
Eigendom belast met erfpacht

Parkeergelegenheid

Soort parkeergelegenheid
Betaald parkeren, openbaar parkeren
Bekijk alle kenmerken