Jhr.Mr.Dr. H.A. van Karnebeeklaan 52 Amstelveen

Omschrijving

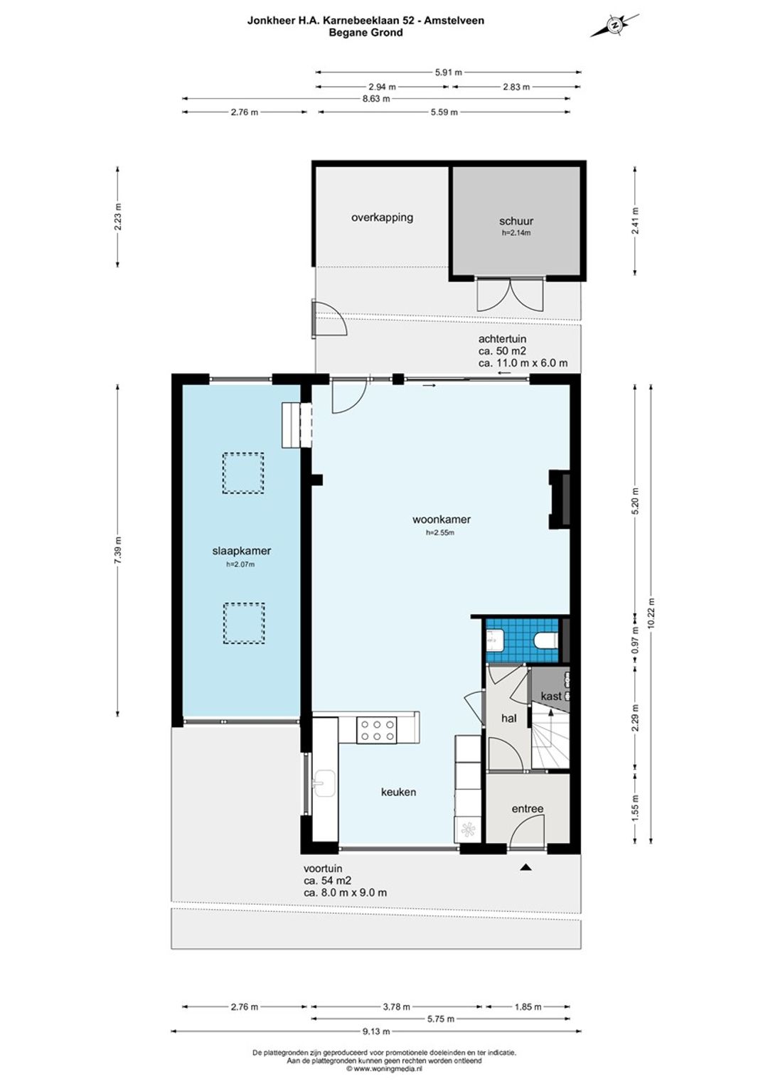
Een unieke jaren ’50 uitgebouwde hoekwoning met tot werkkamer/2e woonkamer omgebouwde garage gelegen nabij het Stadshart. Met eigen oprit, 4 (eventueel 5) slaapkamers en 2 badkamers is dit een echt familiehuis! De woning is de afgelopen jaren uitgebouwd en recent gerenoveerd naar de luxe van deze tijd.

De indeling is als volgt:

Entree, hal met toiletruimte, meterkast en entree naar de woonkamer. Zeer royale, uitgebouwde woonkamer met sierhaard en een moderne open keuken aan de voorzijde voorzien van diverse inbouwapparatuur. Vanuit de woonkamer toegang tot achtertuin met houten berging met een fantastisch overdekt terras en een achterom. De naastgelegen garage is verbouwd tot een speel-/werkkamer (uitstekend geschikt als extra slaapkamer of kantoor aan huis) voorzien van raampartijen, radiator en twee dakkoepels voor extra lichtinval.
Eerste verdieping bereikbaar middels vaste trap: lichte overloop met toegang tot alle vertrekken. 2 slaapkamers aan de achterzijde, slaapkamer aan de voorzijde met een frans balkon, moderne badkamer (met raam in de zijgevel) voorzien van ligbad, een inloop regendouche, dubbele wastafel in meubel, handdoekradiator en een separaat toilet met fontein. De ‘oude’ badkamer is thans in gebruik als waskamer.
Tweede verdieping bereikbaar middels vaste trap: overloop met opbergruimte en CV ketel (2020). Tweede badkamer voorzien van ligbad met douche, wastafel in meubel en zwevend toilet. Zeer ruime zolderkamer voorzien van een dakkapel aan de voor- en achterzijde en 2 aansluitpunten voor verwarming met de mogelijkheid om hier 2 kamers van te maken. Ruime voortuin, met een overdekte fietsenstalling, waar het aan het eind van de dag nog heerlijk vertoeven is in de avondzon!

De wijk, nabij het Stadshart, is favoriet in Amstelveen door zijn karakteristieke bouw en vele groenvoorzieningen. Op loopafstand ligt de Rembrandtweg met in het verlengde het mondaine, overdekte winkelcentrum ‘Het Stadshart’; een modern en luxe winkelgebied met tevens uitgaansmogelijkheden (zoals het Cobra museum, muziekpodia en theater). De nabijgelegen snelweg A9 zorgt voor een goede bereikbaarheid per auto. Bij het Stadshart ligt tevens het busstation van Amstelveen, vanwaar busverbindingen in noordelijke richting (Amsterdam) en zuidelijke richting van Amstelveen/Schiphol(wel de lusten niet de lasten)/Aalsmeer/Uithoorn en omgeving gaan. Tevens ligt het centrum van Amsterdam op fietsafstand. Voor de natuurliefhebber ligt op loopafstand het Amsterdamse Bos.
Er is een ruime keuze aan lagere-/ en middelbare scholen in de nabijheid alsmede de Internationale School en diverse sportfaciliteiten voor jong en oud. Kortom: alle gemakken om het woonplezier optimaal te maken!

Bijzonderheden woning:

– Woonoppervlakte 172 m²;
– Bouwjaar 1955;
– Garage omgebouwd tot speel-/werkkamer met 2 dakkoepels en witte houten vloer;
– De eerste en tweede verdieping zijn in 2020 geheel gerenoveerd.
– Gehele woning voorzien van fraaie houten vloer;
– Badkamer 1 voorzien van ligbad, inloopdouche, dubbele wastafel en handdoekradiator;
Badkamer 2 voorzien van ligbad met douche, wastafel en een zwevend toilet;
– Luxe, moderne open keuken (2016) voorzien van diverse inbouwapparatuur waaronder een keramisch fornuis met hetelucht oven, combi-magnetron, koelkast met 3 ladevriezer en een vaatwasser;
– Gehele woning voorzien van dubbel glas;
– Verwarming en warm water middels C.V. (Remeha Calanta; 2020);
– Wanden en plafonds zijn gestuukt en licht afgewerkt;
– Fraaie achtertuin met zonnescherm, rolluiken, tuinverlichting in (Italiaanse keramische) tegels, elektra, buitenkraan; – Houten berging en overdekt terras met verlichting;
– Zonwering bij de slaapkamer voorzijde 1e verdieping en voor- en achterzijde zolderkamer;
– Op de oprit mogelijkheid tot het parkeren op eigen terrein;
– In de straat geldt betaald parkeren, bewoners middels vergunning;
– Oplevering medio 2022;

Deze woning heeft een eigen website! Hier vindt u alles nog eens fraai in beeld gebracht met onder andere de kadastrale kaart, lijst van roerende zaken, het meetcertificaat, full screen foto’s evenals informatie over de buurt, een ‘streetview’ en de zonnegrens!

De koopakte en leveringsakte zullen uitsluitend worden opgemaakt volgens het model van de Koninklijke Notariële Beroepenorganisatie en het ringmodel koopcontract Amsterdam, Amstelveen, Diemen, Badhoevedorp en Hoofddorp.
Het notariskantoor van keuze dient te zijn gevestigd in één van de genoemde plaatsen.

Het verkochte is gemeten met gebruikmaking van de meetinstructie, welke is gebaseerd op de normen zoals vastgelegd in NEN 2580. De meetinstructie is bedoeld om een meer eenduidige manier van meten toe te passen voor het geven van een indicatie van de gebruiksoppervlakte. De meetinstructie sluit verschillen in meetuitkomsten niet volledig uit door bijvoorbeeld interpretatieverschillen, afrondingen en beperkingen bij het uitvoeren van een meting.

De woning is gemeten door een betrouwbaar professioneel bedrijf en koper vrijwaart verkoper evenals (de medewerkers van) Makelaarsgroep o.g. Commissaris voor eventuele afwijkingen in de opgegeven maten. Koper verklaart in de gelegenheid te zijn gesteld om het verkochte zelf te (laten) meten conform NEN 2580.

Lees de volledige omschrijving

Kenmerken

Algemeen

Aangeboden sinds
6+ maanden
Status
Verkocht
Aanvaarding
In overleg
Soort woonhuis
Herenhuis, hoekwoning
Soort bouw
Bestaande bouw
Bouwjaar
1955
Ligging
Aan rustige weg, in centrum, in woonwijk

Oppervlakten en inhoud

Wonen
172 m²
Gebouwgebonden Buitenruimte
1 m²
Externe bergruimte
7 m²
Perceel
220 m²
Inhoud
533 m³

Indeling

Aantal kamers
6 kamers (4 slaapkamers)
Aantal badkamers
2 badkamers
Badkamervoorzieningen
Dubbele wastafel, inloopdouche, ligbad, toilet, wastafelmeubel
Aantal woonlagen
3

Energie

Energielabel
C
Isolatie
Volledig geisoleerd
Warm water
Cv ketel

Kadastrale gegevens

Perceelnaam
Amstelveen H 6629
Oppervlakte
220 m²
Eigendomssituatie
Volle eigendom
Perceel
ASV00-H-6629

Buitenruimte

Tuin
Achtertuin, voortuin
Achtertuin
50 m²
Ligging tuin
Zuidoost bereikbaar via achterom

Parkeergelegenheid

Soort parkeergelegenheid
Betaald parkeren, op eigen terrein, parkeervergunningen
Bekijk alle kenmerken