Frederiksstraat 11 hs Amsterdam

Omschrijving

Op een uiterst centrale locatie in de gewilde Helmersbuurt, met aan het eind van de autoluwe straat toegang tot het Vondelpark ligt dit schitterende dubbele benedenhuis met beschutte tuin op eigen grond! ENGLISH TEXT BELOW!

Uniek: Idyllische straat, 85 m² met tuin, eigen grond, nieuwe fundering en het Vondelpark als achtertuin.

Indeling van het appartement:

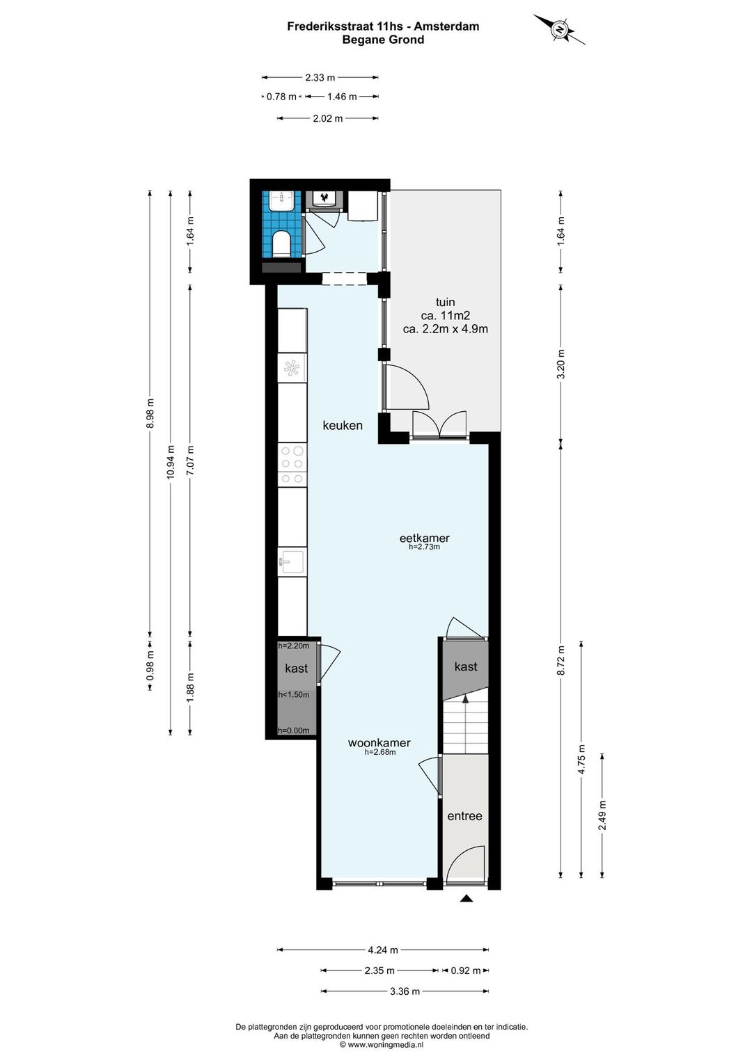
Middels de eigen opgang vanaf de straatzijde treedt u de gang binnen, gang met garderobe en trapopgang naar de eerste verdieping. De lichte doorzonwoonkamer met twee bergkasten, biedt voldoende ruimte voor een fijne zithoek. De zeer ruime woonkeuken is gelegen aan de achterzijde met toegang tot de tuin. De keuken is voorzien van diverse inbouwapparatuur, waaronder een prachtig robuust Boretti 6 pits gasfornuis met twee ovens, grillplaat, koelkast met vrieslades, vaatwasser en een afzuigkap. Vanuit de open keuken is middels openslaande deuren de zeer fraaie beschutte tuin toegankelijk, tevens voorzien van een handige opbergkast. Achter de keuken bevindt zich het toilet (zwevend) met fontein. Daarnaast is hier een handige opbergkast gecreëerd met aansluiting voor de wasmachine/droger. De CV installatie is in een separate kast geplaatst.

Vanuit de gang is de eerste verdieping toegankelijk. De overloop biedt toegang tot de twee verbonden slaapkamers gelegen aan de voorzijde alsmede de royale slaapkamer gelegen aan de achterzijde. Met een aaneensluitende zeer complete badkamer welke is voorzien van 2 wastafels met spiegel, hoek ligbad met handdouche, toilet (zwevend) en een design radiator.

Kortom: een uniek object voor het wonen in de stad met optimale privacy en rust.
Het appartement is uniek gelegen in een doodlopend en autoluw kindvriendelijk straatje met toegang tot het Vondelpark. Gelegen in een zijstraat naast de Overtoom, waar zich tal van restaurants, winkels en supermarkten bevinden. Tevens ligt het appartement op loopafstand van de P.C. Hooftstraat, Van Baerlestraat en de Cornelis Schuytstraat. De aanwezigheid van diverse bus- en tramhaltes en de A10 ( S106- de ring rondom Amsterdam) maken dit centraal gelegen appartement voor eenieder goed bereikbaar en aantrekkelijk.

Bijzonderheden van het appartement:

– gelegen op eigen grond;
– woonoppervlakte: 85 m²;
– bouwjaar circa. 1900;
– de woning is in 2006 gesplitst en gerenoveerd;
– in 2005 is de fundering vernieuwd;
– de woning wordt verwarmd d.m.v. centrale verwarming;
– de keuken is voorzien van inbouwapparatuur waaronder een koelkast met vrieslades, Boretti gasfornuis met afzuigkap, grillplaat, twee ovens en een vaatwasser;
– de wasmachine- en droger-aansluiting bevinden zich, samen met de CV-ketel, in een fraaie kast naast de keuken;
– de badkamer is voorzien van een hoek ligbad met handdouche, twee wastafels met spiegel, toilet (zwevend) en een handdoekradiator;
– de servicekosten bedragen ca. € 117,99,= per maand;
– oplevering in overleg.

De woning heeft een eigen website, hier vindt u alles nog eens fraai in beeld gebracht met onder andere de kadastrale kaart, lijst van roerende zaken, het meetcertificaat, full screen foto’s evenals informatie over de buurt, een ‘streetview’ en de zonne-grens!

De koopakte en leveringsakte zullen uitsluitend worden opgemaakt volgens het model van de Koninklijke Notariële Beroepenorganisatie en het ringmodel koopcontract Amsterdam, Amstelveen, Diemen, Badhoevedorp en Hoofddorp.
Het notariskantoor van keuze dient te zijn gevestigd in één van de genoemde plaatsen.

Het verkochte is gemeten met gebruikmaking van de meetinstructie, welke is gebaseerd op de normen zoals vastgelegd in NEN 2580. De meetinstructie is bedoeld om een meer eenduidige manier van meten toe te passen voor het geven van een indicatie van de gebruiksoppervlakte. De meetinstructie sluit verschillen in meetuitkomsten niet volledig uit door bijvoorbeeld interpretatieverschillen, afrondingen en beperkingen bij het uitvoeren van een meting.
De woning is gemeten door een betrouwbaar professioneel bedrijf en koper vrijwaart verkoper evenals (de medewerkers van) Makelaarsgroep o.g. Commissaris voor eventuele afwijkingen in de opgegeven maten. Koper verklaart in de gelegenheid te zijn gesteld om het verkochte zelf te (laten) meten conform de Meetinstructie op basis van NEN 2580.

—English text—

The house is situated in a central location in the popular Helmers neighbourhood, with access to the Vondelpark at the end of the street.

Unique: Idyllic street, 85 m² with garden, private land, new foundation and the Vondelpark as a back garden.

Layout of the apartment:

Through the private entrance from the street you enter the hallway, corridor with wardrobe and staircase to the second floor. The bright living room with two closets, provides adequate space for a nice sitting area. The spacious kitchen is located at the rear with access to the garden. The kitchen is equipped with various appliances, including a beautiful robust Boretti 6 burner stove with two ovens, grill, fridge with freezer drawers, dishwasher and an extractor. From the open kitchen through double doors the very nice secluded garden is accessible, also with a handy storage cupboard. Behind the kitchen is the toilet. In addition, there is a handy storage cupboard created for the washer / dryer. The heating system is in a separate cabinet.

From the hallway the second floor is accessible. The landing provides access to the two connected bedrooms located at the front and the spacious bedroom at the rear. With a contiguous very complete bathroom which is equipped with 2 sinks with mirror, corner bath with hand shower, toilet (floating) and a radiator.

In summary: a unique object for living in the city with privacy and tranquility.
The apartment is uniquely situated in a well maintained child friendly street with access to the Vondelpark. Located in a side street off the Overtoom, where numerous restaurants, stores and supermarkets are located. The apartment is also within walking distance of the P.C. Hooftstraat, Van Baerlestraat and Cornelis Schuytstraat. The presence of several bus and streetcar stops and the A10 (S106- the ring around Amsterdam) make this centrally located apartment easily accessible and attractive to everyone.

Special features of the apartment:

– located on private land;
– living area: 85 m²;
– Built in 1900;
– The house was divided and renovated in 2006;
– In 2005, the foundation renewed;
– The house is heated by central heating;
– The kitchen is equipped with appliances including a refrigerator with freezer drawers, Boretti stove with hood, grill, two ovens and a dishwasher;
– The washing machine and dryer connections are located, along with the boiler, in a nice closet next to the kitchen;
– The bathroom has a corner bath with hand shower, two sinks with mirror, toilet (floating) and a towel radiator;
– the service costs are € 117,99,= per month;
– Delivery in consultation.

This house also has its own website! Here you will find everything again beautifully presented including the cadastral map, list of movable property, the measurement certificate, full screen photos as well as information about the neighborhood, a ‘streetview’ and the solar border!

The deed of purchase and the deed of delivery will be drawn up exclusively according to the model of the Royal Notarial Association and the ring model purchase contract Amsterdam, Amstelveen, Diemen, Badhoevedorp and Hoofddorp.
The notary’s office of choice must be located in one of the aforementioned places.

The property has been measured using the measurement instruction, which is based on the standards laid down in NEN 2580. The measurement instruction is intended to provide a more uniform way of measuring to give an indication of the usable area. The measurement instruction does not fully exclude differences in measurement results due to, for example, differences in interpretation, rounding off and limitations in carrying out a measurement.
The house has been measured by a reliable professional company and the buyer indemnifies the seller as well as (the employees of) Makelaarsgroep o.g. Commissaris for any deviations in the given measurements. The Purchaser declares that he has been given the opportunity to measure the property himself or have it measured in accordance with NEN 2580.

Lees de volledige omschrijving

Kenmerken

Algemeen

Aangeboden sinds
6+ maanden
Status
Verkocht
Aanvaarding
In overleg
Soort woonhuis
Appartement, benedenwoning
Soort bouw
Bestaande bouw
Ligging
Aan park, aan rustige weg, in woonwijk

Oppervlakten en inhoud

Wonen
85 m²
Inhoud
307 m³

Indeling

Aantal kamers
4 kamers (3 slaapkamers)
Aantal badkamers
1 badkamer
Badkamervoorzieningen
Douche, dubbele wastafel, ligbad
Aantal woonlagen
2
Voorzieningen
Mechanische ventilatie

Energie

Energielabel
D
Isolatie
Dubbel glas
Verwarming
Cv ketel
Warm water
Cv ketel
Cv-ketel
Remeha (gas gestookt uit 2010, eigendom)

Kadastrale gegevens

Perceelnaam
Amsterdam U A1
Perceel
10743-U-A1

Buitenruimte

Tuin
Achtertuin
Achtertuin
11 m²
Ligging tuin
Oost

Parkeergelegenheid

Soort parkeergelegenheid
Betaald parkeren, openbaar parkeren, parkeervergunningen
Bekijk alle kenmerken