Eyckenstein 81 Amstelveen

Omschrijving

Gelegen in de gewilde wijk “Amstelveen Westwijk” tegen Bovenkerk aan, mogen wij aanbieden dit schitterende recent compleet gerenoveerde (renovatiejaar 2020/2021) 5-kamer penthouse met royaal balkon, riant dakterras, eigen garage en fantastisch vrij uitzicht over Amstelveen, het Amsterdamse Bos, Bovenkerk met zijn fraaie Urbanuskerk en tot aan de Amsterdamse Zuidas! Het appartement ligt op de 5e en 6e verdieping en heeft een speelse ’taart-punt’-indeling, hetgeen de bijzondere uitstraling en de bouw van het complex verklaart. Het complex beschikt over een bijzonder en fraai van diverse planten voorzien atrium. In de onderbouw bevindt zich de garage voorzien van elektrische deur (verplichte overname garage van € 35.000,=). English text below!

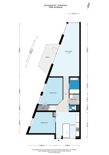
De indeling van het appartement is als volgt:

Centrale entree in het atrium en vanuit daar middels de lift of het trappenhuis toegang tot de vijfde verdieping, alwaar de entree van de woning. Aan het zeer lichte atrium gelegen ruime luxe open woonkeuken voorzien van een kookeiland en diverse AEG inbouwapparatuur o.a.: oven, combi magnetron, vaatwasser en een inductie kookplaat met inbouw afzuigkap. Naast de keuken bevindt zich een slaapkamer welke is voorzien van airconditioning alsmede de trap naar de 6e verdieping. Royale woonkamer met deur naar het balkon op het westen, aangrenzend de werk-/hobbykamer dan wel de 2e slaapkamer met royale kast onder de trap. De luxe badkamer is voorzien van een inloopdouche, een dubbele wastafel met spiegel. Separaat toilet en royale inpandige berging met wasmachine aansluiting en CV-ketel.

De interne trap geeft toegang naar de bovengelegen ruimte welke thans in gebruik is als loft (thans in gebruik als 2e woonkamer, maar ook geschikt als thuiswerklocatie) met aangrenzend een royaal dakterras met fraai uitzicht. Daarnaast beschikt deze verdieping over een eigen kitchenette welke is voorzien van een spoelbak, koelkast en vaatwasser en een royale berging en grote kleedkamer. Middels een vaste trap is de vide toegankelijk waar zich de 3e slaapkamer bevindt met badkamer en-suite, bestaande uit een royaal ligbad alsmede een wastafelmeubel met spiegel, toilet en een schitterend uitzicht.

Gelegen aan de rand van de kindvriendelijke en moderne woonwijk “Westwijk”, nabij alle denkbare voorzieningen. Voor de liefhebbers van een rustige omgeving treft u op steenworp afstand het natuurgebied ‘De Poel’ aan, direct grenzend aan het Amsterdamse Bos. Een gebied met tal van recreatieve mogelijkheden. De gehele wijk kenmerkt zich door diverse groenvoorzieningen, groene singels, waterpartijen en een grote variatie in ruim opgezette bebouwingen. Er is een ruime keuze aan lagere-/ en middelbare scholen in de nabijheid alsmede de Internationale School en diverse sportfaciliteiten voor jong en oud. Op loopafstand ligt het recent gerenoveerde winkelcentrum ‘Westwijk’ met een grote diversiteit aan winkels. Op 10 minuten fietsen ligt het mondaine, overdekte winkelcentrum ‘Het Stadshart, een modern en luxe winkelgebied met tevens diverse uitgaansmogelijkheden.

In de nabijheid zijn diverse tram- en busverbindingen, de hernieuwde sneltram lijn 25 op loopafstand met zijn directe verbinding naar het WTC-treinstation en het Centrum van Amsterdam (en in de toekomst mogelijk naar Uithoorn). Net als de uitvalswegen naar de A9/A10/A2 en de vernieuwde N201 met een goede bereikbaarheid naar Schiphol, Haarlem en Amsterdam.

Bijzonderheden appartement:

– Het appartement is recent compleet gerenoveerd (renovatiejaar 2020/2021)
– Bouwjaar 1995;
– Woonoppervlakte appartement 185 m²;
– Loft verdieping met vide;
– Complex beschikt over een lift;
– Video intercomsysteem aanwezig;
– Luxe badkamer voorzien van een inloopdouche en dubbele wastafel;
– Royale open keuken voorzien van een kookeiland en diverse inbouwapparatuur;
– Actieve Vereniging van Eigenaren, beheer door Van der Linden Vastgoedmanagement;
– Servicekosten € 356,= per maand;
– Verplichte overname van de garage van € 35.000,=;
– Oplevering in overleg.

De woning heeft een eigen website, hier vindt u alles nog eens fraai in beeld gebracht met onder andere de kadastrale kaart, lijst van roerende zaken, het meetcertificaat, full screen foto’s evenals informatie over de buurt, een ‘streetview’ en de zonne-grens!

De koopakte en leveringsakte zullen uitsluitend worden opgemaakt volgens het model van de Koninklijke Notariële Beroepenorganisatie en het ringmodel koopcontract Amsterdam, Amstelveen, Diemen, Badhoevedorp en Hoofddorp.
Het notariskantoor van keuze dient te zijn gevestigd in één van de genoemde plaatsen.

Het verkochte is gemeten met gebruikmaking van de meetinstructie, welke is gebaseerd op de normen zoals vastgelegd in NEN 2580. De meetinstructie is bedoeld om een meer eenduidige manier van meten toe te passen voor het geven van een indicatie van de gebruiksoppervlakte. De meetinstructie sluit verschillen in meetuitkomsten niet volledig uit door bijvoorbeeld interpretatieverschillen, afrondingen en beperkingen bij het uitvoeren van een meting.

De woning is gemeten door een betrouwbaar professioneel bedrijf en koper vrijwaart verkoper evenals (de medewerkers van) Makelaarsgroep o.g. Commissaris voor eventuele afwijkingen in de opgegeven maten. Koper verklaart in de gelegenheid te zijn gesteld om het verkochte zelf te (laten) meten conform NEN 2580.

***English text***

Located in the popular area “Amstelveen Westwijk” near Bovenkerk, we can offer this beautiful recently completely renovated (renovation year 2020/2021) 5-room penthouse with a balcony, spacious roof terrace, private garage and fantastic unobstructed view over Amstelveen, the Amsterdamse Bos, Bovenkerk with the beautiful Urbanuskerk and the Amsterdam Zuidas! The apartment is on the 5th and 6th floor and has a playful layout, which shows the special appearance and construction of the complex. The complex has a special and beautiful atrium with various plants. In the basement is the garage with electric door (mandatory takeover garage of € 35,000).

The layout of the apartment is as follows:

Central entrance in the atrium and from there through the elevator or the stairwell access to the fifth floor, where the entrance is of the apartment. The spacious luxury open kitchen equipped with a cooking island and various AEG built-in appliances, including: oven, combi microwave, dishwasher and an induction hob with built-in extractor hood. Next to the kitchen is a bedroom which is equipped with air conditioning and the stairs to the 6th floor. The spacious living room with door to the west-facing balcony, adjacent to the work/hobby room or the 2nd bedroom with a large closet under the stairs. The luxurious bathroom has a walk-in shower and a double sink with mirror. Separate toilet and spacious storage room with washing machine connection and central heating boiler.

The internal staircase gives access to the loft above (currently used as a 2nd living room, but also suitable as a home office location) with an adjacent spacious roof terrace with beautiful views. In addition, this floor has its own kitchenette which is equipped with a sink, refrigerator and dishwasher and a spacious storage room and large dressing room. The loft is accessible via a staircase where the 3rd bedroom is located with en-suite bathroom, consisting of a spacious bath and a washbasin with mirror, toilet and a magnificent view.

Located on the edge of the child-friendly and modern residential area “Westwijk”, near all imaginable amenities. For people who prefer a quiet environment you will find the nature reserve ‘De Poel’, directly next to the Amsterdamse Bos. An area with many recreational opportunities. The entire district is characterized by various green areas, green canals and water features. There is a wide choice of primary and secondary schools in the vicinity as well as the International School and various sports facilities for young and old. Within walking distance is the recently renovated shopping center ‘Westwijk’ with a wide variety of shops. The fashionable, covered shopping center ‘Het Stadshart’, a modern and luxurious shopping area with various entertainment options, is a 10-minute bike ride away.

There are various tram and bus connections in the vicinity, the renewed express tram line 25 within walking distance with its direct connection to the WTC train station and the Center of Amsterdam (and in the future possibly to Uithoorn). Just like the roads to the A9/A10/A2 and the renewed N201 with good accessibility to Schiphol, Haarlem and Amsterdam.

Details of the apartment:

– The apartment has recently been completely renovated (renovation year 2020/2021)
– Year of construction 1995;
– Living area of 185 m²;
– Extra loft floor;
– Complex has an elevator;
– Video intercom system;
– Luxurious bathroom with a walk-in shower and double sink;
– Spacious open kitchen with a cooking island and various built-in appliances;
– Active Owners Association, managed by Van der Linden Vastgoedmanagement;
– Service costs € 356,= per month;
– Mandatory takeover of the garage of € 35,000;
– Delivery in consultation.

Lees de volledige omschrijving

Kenmerken

Algemeen

Aangeboden sinds
6+ maanden
Status
Verkocht
Aanvaarding
In overleg
Soort woonhuis
Appartement, penthouse
Soort bouw
Bestaande bouw
Bouwjaar
1995
Soort dak
Bitumineuze dakbedekking
Ligging
Aan rustige weg, in woonwijk, vrij uitzicht

Oppervlakten en inhoud

Wonen
181 m²
Gebouwgebonden Buitenruimte
46 m²
Externe bergruimte
18 m²
Inhoud
613 m³

Indeling

Aantal kamers
6 kamers (4 slaapkamers)
Aantal badkamers
2 badkamers
Badkamervoorzieningen
Inloopdouche, ligbad, toilet, wastafel, wastafelmeubel
Aantal woonlagen
3

Energie

Energielabel
B
Isolatie
Dubbel glas
Warm water
Cv ketel

Kadastrale gegevens

Perceelnaam
Amstelveen O 4594
Eigendomssituatie
Volle eigendom
Perceel
ASV00-O-4594
Perceelnaam
Amstelveen O 4594
Eigendomssituatie
Volle eigendom
Perceel
ASV00-O-4594

Garage

Capaciteit
1 auto
Voorzieningen
Elektrische deur

Parkeergelegenheid

Soort parkeergelegenheid
Openbaar parkeren
Bekijk alle kenmerken