Buitenzorg 12 Amstelveen

Omschrijving

Uniek, zeer royaal en fraai gelegen familiehuis in Amstelveen dat aan alle wensen zal voldoen! Een HOEK-woning met riante, goed onderhouden tuin inclusief grote berging en achterom. Gelegen aan een autoluwe straat. Voor kinderen dus nagenoeg veilig spelen voor de deur. Vanuit de zitkamer heeft u een fraai uitzicht op Meerhuysen (straat) tot de straat Oud Mijl. De woning bezit vijf ruime slaapkamers, twee badkamers, moderne in 2021 vernieuwde woonkeuken met inbouwapparatuur en openslaande deuren naar de tuin, gelegen (ca. 75m²) op het noordwesten. Ruime woonkamer eveneens met openslaande deuren naar de tuin en en een openhaard. Kortom, ruimte, comfort, luxe en vrijheid zijn de woorden die passen bij dit huis én mooie locatie!

OMGEVING
Het huis is gelegen ten noorden van de Graaf Aelbrechtlaan en Buitenzorg is een aftakking van de Rembrandtweg. Het Stadhart bevindt zich op circa vijf minuten loopafstand. Hier treft u een zeer divers winkelaanbod. Voorts vindt u hier veel horeca, de schouwburg, een bibliotheek en tal van andere voorzieningen. Fietst u via de Graaf Aelbrechtlaan het “Zwarte Pad” af naar het zuiden, dan komt u bij het “Oude Dorp” met eveneens sfeervolle en culinaire restaurants. Fietst u naar het noorden, dan kan dit in één rechte lijn zonder stoplichten tot het Olympisch stadion/Zuid-As. Voor ontspanning en natuur kunt u naar het Amsterdamse Bos wat middels de Oude Karselaan direct toegankelijk is. Dichterbij huis vindt u kleinere parken waaronder Park de Ruyschlaan, Het Broersepark en De Braak alsmede het Kruiskerkpark welke voor spelende kinderen een walhalla is.

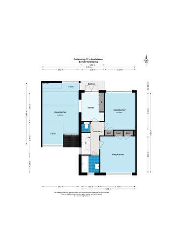
INDELING
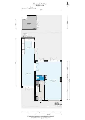
Begane grond: entree met garderobe, meterkast en vergroot toilet, trap naar eerste verdieping, deur naar keuken (voorzijde), ruime L- vormige woonkamer met open haard, openslaande deuren naar de tuin. Lichte moderne woonkeuken met vloerverwarming voorzien van inbouwapparatuur en donkergekleurd aanrechtblad. De doorzon keuken heeft een toegang direct vanaf de voor- én achtertuin De woonkamer biedt voldoende ruimte voor een grote eettafel om met gezelschappen te kunnen borrelen en dineren. Vanuit dit woonkamer zijn er openslaande deuren naar de de zonnige achtertuin op het noordwesten. Via de tuin kunt u langs de woning lopen. De tuin is voorzien van een grote berging en een achterom.

Eerste verdieping: overloop met toegang tot alle vertrekken. Drie ruime slaapkamers aan zowel de voor- als achterzijde van de woning, badkamer aan de voorzijde. De zéér ruime speelse hoofdslaapkamer heeft hoge plafonds, een dakkapel aan de voorzijde en een ruime kleedkamer (voormalige slaapkamer met frans balkon) en openslaande deuren naar het balkon met uitzicht op de tuin, voorts een ruime bergruimte. De badkamer is voorzien van een ligbad, wastafelmeubel, handdoekradiator, een separaat toilet op de overloop.

Tweede verdieping: overloop met toegang tot twee royale slaapkamers (één aan voor- en één achterzijde) met veel stahoogte en ieder een dakkapel. Badkamer voorzien van inloopdouche, wastafel, handdoekradiator en toilet. Tevens in de badkamer de aansluiting voor de wasmachine en droger. Op de overloop bevindt zich onder het dakbeschot een opslagkast met de C.V. ketel, (bouwjaar 2020).

Buitenruimte: door de open ligging van de tuin heeft u gedurende de dag veel zon, mede door de verre ligging van buren aan de overzijde heeft u gedurende alle seizoenen de zon in de woonkamer. De achtertuin ligt op het noordwesten, is ca. 80m2 en is voorzien van een ruim terras en diverse borders met vaste planten. De houten schuur is ideaal voor opslag van niet alledaagse spullen. Via een achterom/zijingang is de tuin bereikbaar. De voortuin is voorzien van straatwerk en vaste borders en is circa PM m2 groot.
Parkeren is mogelijk voor de deur via een vergunningenstelsel. Als bewoner heb je recht op twee parkeervergunningen. Voor bezoek is er de mogelijkheid om middels een bezoekers app tegen gereduceerd tarief te parkeren.
Het openbaar vervoer stopt op de Rembrandtweg en de Keizer Karelweg. Het busstation van Amstelveen is op loopafstand bereikbaar. Vanuit hier gaan er diverse bussen richting Amsterdam, Aalsmeer, Uithoorn en luchthaven Schiphol (lijn 300 en 310). Voorts bereikt u middels de (snel)tram op de Beneluxlaan direct Amsterdam en andere delen van Amstelveen.

KENMERKEN
– Woonoppervlak 187m2 (NEN 2580);
– Tuin (goed onderhouden) gelegen op het noordwesten van ca. 75m², ruime voortuin op het zuiden van ca. 50m²;
– Moderne woonkeuken met inductie kookplaat, afzuigkap en vaatwasser;
– Vijf slaapkamers en twee badkamers
– Zeer kindvriendelijk door autoluwe straat;
– Energielabel B, CV-ketel Remeha Tzerra Ace 39C uit 2020;
– Gelegen op eigen grond;
– Oplevering in overleg.

De woning heeft ook een eigen website. Hier vindt u alles nog eens fraai in beeld gebracht met onder andere de kadastrale kaart, lijst van roerende zaken, het meetcertificaat, full screen foto’s evenals informatie over de buurt, een ‘Streetview’ en de zonne-grens!

De koopakte en leveringsakte zullen uitsluitend worden opgemaakt volgens het model van de Koninklijke Notariële Beroepsorganisatie en het Ringmodel koopcontract Amsterdam, Amstelveen, Diemen, Badhoevedorp en Hoofddorp. Het notariskantoor van keuze dient te zijn gevestigd in één van de genoemde plaatsen.

Het verkochte is gemeten met gebruikmaking van de meetinstructie, welke is gebaseerd op de normen zoals vastgelegd in NEN 2580. De meetinstructie is bedoeld om een meer eenduidige manier van meten toe te passen voor het geven van een indicatie van de gebruiksoppervlakte. De meetinstructie sluit verschillen in meetuitkomsten niet volledig uit door bijvoorbeeld interpretatieverschillen, afrondingen en beperkingen bij het uitvoeren van een meting.

Lees de volledige omschrijving

Kenmerken

Algemeen

Aangeboden sinds
6+ maanden
Status
Verkocht
Aanvaarding
In overleg
Soort woonhuis
Eengezinswoning, hoekwoning
Soort bouw
Bestaande bouw
Bouwjaar
1956
Soort dak
Pannen
Ligging
Aan rustige weg, in woonwijk

Oppervlakten en inhoud

Wonen
187 m²
Gebouwgebonden Buitenruimte
2 m²
Externe bergruimte
8 m²
Perceel
267 m²
Inhoud
637 m³

Indeling

Aantal kamers
6 kamers (5 slaapkamers)
Aantal badkamers
2 badkamers
Badkamervoorzieningen
Douche, ligbad, toilet, wasmachineaansluiting, wastafel, wastafelmeubel
Aantal woonlagen
3
Voorzieningen
Frans balkon

Energie

Energielabel
B
Isolatie
Dubbel glas
Verwarming
Cv ketel
Warm water
Cv ketel
Cv-ketel
Remeha Tzerra (gas gestookt combiketel uit 2020, eigendom)

Kadastrale gegevens

Perceelnaam
Amstelveen H 7308
Oppervlakte
267 m²
Eigendomssituatie
Volle eigendom
Perceel
ASV00-H-7308

Buitenruimte

Tuin
Achtertuin, voortuin
Ligging tuin
Noordwest bereikbaar via achterom

Parkeergelegenheid

Soort parkeergelegenheid
Betaald parkeren, openbaar parkeren, parkeervergunningen
Bekijk alle kenmerken