Amstelveenseweg 952 -954 Amsterdam

Omschrijving

Zeer uniek en geheel pand met twee bestaande woonvergunningen en de mogelijkheid om deels te verhuren. Hierdoor ook verticaal op te splitsen in twee riante woonhuizen met fraaie achtertuin aan het water en Amsterdamse Bos, gelegen op EIGEN GROND bestaande uit:

– 201m² – begane grond met souterrain en riante tuin aan het water en bos, leeg op te leveren;
– 119m² – 1e verdieping bereikbaar via centraal trappenhuis met lift, riant terras achterzijde met uitzicht op water, leeg op te leveren;
– 54m² – 2e verdieping bereikbaar via centraal trappenhuis met lift, studio appartement met eigen badkamer en keuken, leeg op te leveren;
– 51m² – 2e verdieping bereikbaar via centraal trappenhuis met lift, studio appartement met eigen badkamer en keuken, verhuurd tot 14-10-2022;

Het pand wordt alleen in zijn geheel verkocht. De woningen zijn ook uitermate geschikt voor een woongroep, mantelzorg en/of voor medegebruik als kangoeroe woning.

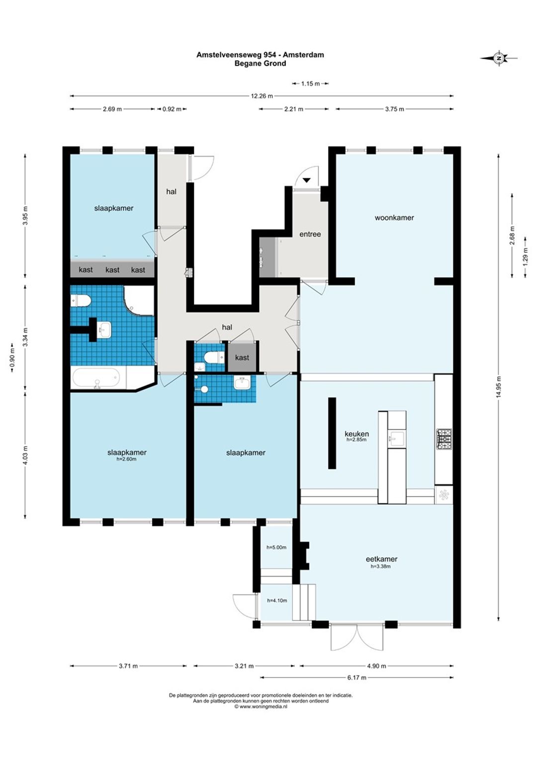
Begane grond: eigen entree (2x), riante woon-/eetkamer, luxe keuken met diverse apparatuur, een zonnige zitkamer met grote openslaande deuren naar de tuin op het westen met speelse hoge verdiepingshoogte (3,5m) en gashaard. Riante tuin gelegen aan het water en het Bos. Voorzien van 3 slaapkamers, waarvan 1 met douche en wastafel. Ruime badkamer met bad, separate douche en toilet. Er is tevens een gastentoilet aanwezig. Trap vanuit de eetkamer naar het souterrain met een open vrij indeelbare ruimte van 7.62m x 6.92m, inclusief een fietsenberging. Raampartijen aan de tuinzijde. Fietsenberging is eveneens vanaf de straat te bereiken hierdoor zéér geschikt voor logees en/of au-pair. Zie foto’s 1 t/m 39.

Entree met 1e en 2e verdieping te bereiken middels een centraal trappenhuis met lift. De indeling van de 1e verdieping is als volgt:

Riante L-vormige woonkamer (waarbinnen een evt. 3e slaapkamer te creëren is) met open keuken met kookeiland, 2 grote slaapkamers met ieder een inloopkast, badkamer met ligbad, douche, toilet en dubbele wastafel. Riant balkon op het westen met zicht op het Amsterdamse Bos. Separaat gastentoilet. Zie foto’s 40 t/m 51.

2e verdieping gemeenschappelijke gang:

Appartement linkerzijde: L-vormige woonkamer met keuken, badkamer met douche, toilet en wastafel, slaapkamer aan de voorzijde met 2 vaste kasten en een balkon.
Appartement rechterzijde: eveneens L-vormig op de westzijde gelegen, identieke badkamer en slaapkamer aan de voorzijde met 1 vaste kast en een balkon.
Zie foto’s 62 t/m 69.

Bij de uitvoering van een potentiële opbouw van nummer 956 zullen op de 2e verdieping links de ramen aan de zuidzijde van het appartement moeten worden verwijderd/geblindeerd.

Het pand ligt aan de Amstelveenseweg op slechts 4 km van hartje Amsterdam en op korte afstand van het Groot Gelderlandplein en het winkelcentrum Stadshart Amstelveen met een zeer ruim aanbod van dagelijkse en luxe winkelfaciliteiten. Nabij zijn veel voorzieningen waaronder diverse sportmogelijkheden (Spa Zuiver), dagrecreatie in het Amsterdamse Bos en het Amstelpark, en een grote diversiteit aan scholen. Station Zuid-WTC ligt op een steenworp afstand met goede verbinding naar Schiphol alsmede de uitvalswegen Ring A-10, A-4, A-5. En er is “voor de deur” een ruim aanbod aan openbaar vervoer.

Deze woning heeft ook een eigen website! Hier vindt u alles nog eens fraai in beeld gebracht met onder andere de kadastrale kaart, lijst van roerende zaken, het meetcertificaat, full screen foto’s evenals informatie over de buurt, een ‘streetview’ en de zonnegrens!

De koop- en leveringsakte zullen uitsluitend worden opgemaakt volgens het model van de Koninklijke Notariële Beroepenorganisatie en het ringmodel koopcontract Amsterdam, Amstelveen, Diemen, Badhoevedorp en Hoofddorp.
Het notariskantoor van keuze dient te zijn gevestigd in één van de genoemde plaatsen.

Het verkochte is gemeten met gebruikmaking van de meetinstructie, welke is gebaseerd op de normen zoals vastgelegd in NEN 2580. De meetinstructie is bedoeld om een meer eenduidige manier van meten toe te passen voor het geven van een indicatie van de gebruiksoppervlakte. De meetinstructie sluit verschillen in meetuitkomsten niet volledig uit door bijvoorbeeld interpretatieverschillen, afrondingen en beperkingen bij het uitvoeren van een meting.

De woning is gemeten door een betrouwbaar professioneel bedrijf en koper vrijwaart verkoper evenals (de medewerkers van) Makelaarsgroep o.g. Commissaris voor eventuele afwijkingen in de opgegeven maten. Koper verklaart in de gelegenheid te zijn gesteld om het verkochte zelf te (laten) meten conform NEN.

Lees de volledige omschrijving

Kenmerken

Algemeen

Aangeboden sinds
6+ maanden
Status
Verkocht
Aanvaarding
In overleg
Soort woonhuis
Herenhuis, tussenwoning
Soort bouw
Bestaande bouw
Bouwjaar
1985
Ligging
Aan bosrand, aan rustige weg, in bosrijke omgeving

Oppervlakten en inhoud

Wonen
425 m²
Perceel
400 m²
Inhoud
1.400 m³

Indeling

Aantal kamers
13 kamers (7 slaapkamers)
Aantal badkamers
5 badkamers
Badkamervoorzieningen
Douche, dubbele wastafel, ligbad, toilet, wastafel
Aantal woonlagen
4

Energie

Isolatie
Dubbel glas
Warm water
Cv ketel

Kadastrale gegevens

Perceelnaam
Amsterdam AK 2887
Oppervlakte
240 m²
Eigendomssituatie
Volle eigendom
Perceel
ASD30-AK-2887
Perceelnaam
Amsterdam AK 2886
Oppervlakte
160 m²
Eigendomssituatie
Volle eigendom
Perceel
ASD30-AK-2886

Buitenruimte

Tuin
Achtertuin
Achtertuin
236 m²
Ligging tuin
West

Parkeergelegenheid

Soort parkeergelegenheid
Betaald parkeren, parkeervergunningen
Bekijk alle kenmerken

Overige media